193 096 174 Р 2 337 500 $ или 1 993 500

Информация об помещении

1
Этаж

Состояние и оснащение

Количество этажей
1
Развернуть
Агент
Сбер А
+7 (985) 795-25-15
Начать чат с агентом

Помещение свободного назначения в Сахалинская область, Южно-Сахалинск ...

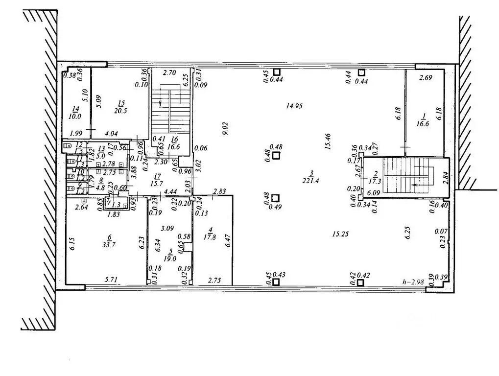
Сбер А предлагает к продаже нежилое здание площадью 1 588 кв.м., гаража площадью 75,8 кв.м. и земельного участка площадью 1 426 кв.м., расположенных по адресу: Сахалинская область, г. Южно-Сахалинск, ул. Амурская, д. 61Продажа посредством проведения торгов на электронной площадке Сбербанк-АСТ.Номер процедуры: SBRСобственник: Дальневосточный банк ПАО СбербанкО лоте:Объект 1:Нежилое здание общей площадью 1588 кв.м.Этажность: 3Кадастровый номер: 65:01:0703004:105Объект 2: Нежилое здание общей площадью 75,8 кв.м.Этаж: 1Кадастровый номер: 65:01:0703004:283Недвижимое имущество расположено на земельном участке площадью 1426 кв. м:Кадастровый номер: 65:01:0703004:69ВРИ: здание банкаКатегория земель: земли населенных пунктовПрава на земельный участок: собственность Обратная аренда: даОсобые условия:Отлагательные условия по подписанию Акта приема передачи Объекта не позднее 01.01.2027.Дополнительная информация, документы и условия реализации указаны на площадке в разделе Документы .По всем вопросам, связанным с лотом, обращайтесь в рабочее время по телефону с 09: 00 до 18: 00 по МСК.

Читать полностью
    Позвонить Написать
    193 096 174 Р2 337 500 $ или 1 993 500
    Агент
    Сбер А
    +7 (985) 795-25-15
    Начать чат с агентом
    Похожие предложения
    Продажа ПСН, Казань, ул. Чистопольская - Фото 1
    Продажа ПСН, Казань, ул. Чистопольская - Фото 2
    Продажа ПСН, Казань, ул. Чистопольская - Фото 3
    Продажа ПСН, Казань, ул. Чистопольская - Фото 4
    Продажа ПСН, Казань, ул. Чистопольская - Фото 5
    Продажа ПСН, Казань, ул. Чистопольская - Фото 6
    Продажа ПСН, Казань, ул. Чистопольская - Фото 7
    общая площадь 756м², полезная площадь 756м²

    Объект №115591 Прибыльный бизнес в центре потокаПродается коммерческое здание в Ново-Савиновском районе Казани площадью 756 кв. м., 4 этажа + полноценный цокольный этаж. Земельный участок: 415 кв. м в собственности Разрешенное использование: деловое...
    • 756 м²
    180 000 000 Р
    Агент
    +7 (843) Показать номер
    Агентство
    ФЛЭТ
    Посмотреть контакты
    Продажа ПСН, м. Проспект Мира, Мира пр-кт. - Фото 1
    Продажа ПСН, м. Проспект Мира, Мира пр-кт. - Фото 2
    Продажа ПСН, м. Проспект Мира, Мира пр-кт. - Фото 3
    Продажа ПСН, м. Проспект Мира, Мира пр-кт. - Фото 4
    Продажа ПСН, м. Проспект Мира, Мира пр-кт. - Фото 5
    Продажа ПСН, м. Проспект Мира, Мира пр-кт. - Фото 6
    общая площадь 186.3м², полезная площадь 186.3м²

    ПСН общей площадью 186,3 м2, находится в 1 минуте пешком от станции метро Проспект Мира, ЦАО, район Мещанский. Помещение расположено на 1 этаже (123,5 м2) и в подвале (62,8 м2) жилого дома. 1-я линия домов. Высота потолков 4,2 метров, есть 2 отдельных...
    • 186.3 м²
    • 1-й эт.
    187 000 000 Р
    Агент
    +7 (903) Показать номер
    Посмотреть контакты
    Продажа ПСН, м. Ховрино, Новосходненское ш. - Фото 1
    Продажа ПСН, м. Ховрино, Новосходненское ш. - Фото 2
    Продажа ПСН, м. Ховрино, Новосходненское ш. - Фото 3
    Продажа ПСН, м. Ховрино, Новосходненское ш. - Фото 4
    Продажа ПСН, м. Ховрино, Новосходненское ш. - Фото 5
    Продажа ПСН, м. Ховрино, Новосходненское ш. - Фото 6
    Продажа ПСН, м. Ховрино, Новосходненское ш. - Фото 7
    Продажа ПСН, м. Ховрино, Новосходненское ш. - Фото 8
    Продажа ПСН, м. Ховрино, Новосходненское ш. - Фото 9
    Продажа ПСН, м. Ховрино, Новосходненское ш. - Фото 10
    Продажа ПСН, м. Ховрино, Новосходненское ш. - Фото 11
    общая площадь 1708м², полезная площадь 1708м²

    Помещение гибридного формата, для размещения производственных, складских и офисных помещений (шоу-румов и офисов продаж) – в одном здании, которое идеально подходит для разных видов бизнеса. Помещение 3-х этажное, расположено в корпусе 1, в промышленном...
    • 1 708 м²
    • 1-й эт.
    194 715 420 Р
    Агент
    +7 (903) Показать номер
    Посмотреть контакты
    Продажа ПСН, м. Лихоборы, Черепановых проезд - Фото 1
    Продажа ПСН, м. Лихоборы, Черепановых проезд - Фото 2
    Продажа ПСН, м. Лихоборы, Черепановых проезд - Фото 3
    Продажа ПСН, м. Лихоборы, Черепановых проезд - Фото 4
    Продажа ПСН, м. Лихоборы, Черепановых проезд - Фото 5
    Продажа ПСН, м. Лихоборы, Черепановых проезд - Фото 6
    Продажа ПСН, м. Лихоборы, Черепановых проезд - Фото 7
    Продажа ПСН, м. Лихоборы, Черепановых проезд - Фото 8
    Продажа ПСН, м. Лихоборы, Черепановых проезд - Фото 9
    Продажа ПСН, м. Лихоборы, Черепановых проезд - Фото 10
    Продажа ПСН, м. Лихоборы, Черепановых проезд - Фото 11
    общая площадь 1848.8м², полезная площадь 1848.8м²

    Арендный бизнес. Продажа административного здания, расположенного в САО, Головинский район, на проезде Черепановых, в 4-х минутах пешком от МЦК «Лихоборы» и «Окружная». Здание отдельностоящее (ОСЗ) 1981 года постройки, общая площадь 1848,8 м2, 3-х этажное,...
    • 1 848.8 м²
    • 1-й эт.
    199 500 000 Р
    Агент
    +7 (903) Показать номер
    Посмотреть контакты
    Продажа ПСН, м. Серпуховская, ул. Дубининская - Фото 1
    Продажа ПСН, м. Серпуховская, ул. Дубининская - Фото 2
    Продажа ПСН, м. Серпуховская, ул. Дубининская - Фото 3
    Продажа ПСН, м. Серпуховская, ул. Дубининская - Фото 4
    общая площадь 672м², полезная площадь 672м²

    Продажа здания, ЮАО, Даниловский район. Шаговая доступность от трех станций метро: Павелецкая, Серпуховская и Тульская. Первая линия улицы Дубининская. Площадь 672 кв.м, 3 отдельных входа с улицы, кирпичное, высота потолка 4,5 м, окна по фасаду здания,...
    • 672 м²
    • 1-й эт.
    189 000 000 Р
    Агент
    +7 (903) Показать номер
    Посмотреть контакты

    Не нашли подходящего объявления?

    Оставьте заявку, и наши риэлторы подберут псн в районе Южно-Сахалинска

    (0)