12 000 000 Р 148 400 $ или 128 500

Информация о квартире

85 м2
Площадь
9 м2
Кухня
3
Комнаты
4
Этаж
6
Этажность

Дополнительная информация

Тип дома
монолит
Развернуть
Агент
+7 (914) 084-33-40
Начать чат с агентом

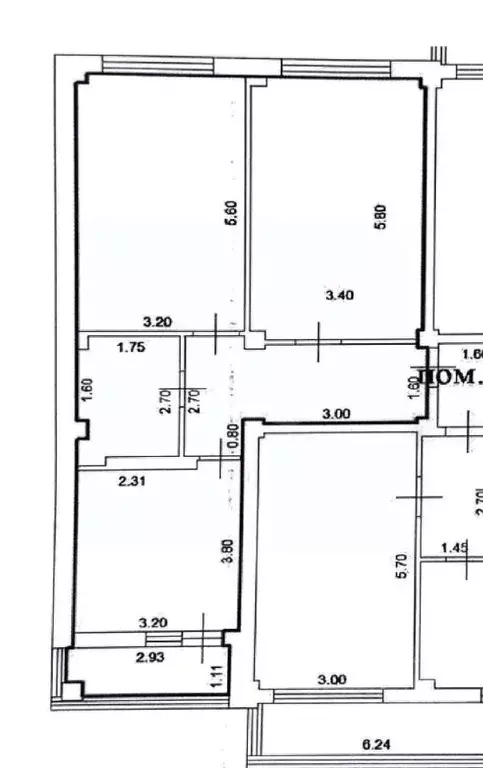
3-к кв. Сахалинская область, Южно-Сахалинск Комсомольская ул., 291 ...

К продаже предлагается уютная, просторная квартира, общей площадью 85 кв.м., на 4-м этаже 6-ти этажного дома. Дом индивидуальной постройки.В квартиреаздельные комнаты, 2 лоджии, гардеробная, совмещенный санузел, отделан кафелем. Имеется свое подсобное помещение. Горячая вода в данном районе круглый год.Окна выходят на южную и северную стороны. Дом расположен в одной из лучших локаций нашего прекрасного города. Двор благоустроенный, внутри комплекса отличная многофункциональная детская площадка. Квартира юридически чистая, без долгов и обременений.Звоните, записывайтесь на показ. Код пользователя: 121769Номер в базе: 9727137

Читать полностью

    Для того, чтобы купить трехкомнатную квартиру по адресу: Южно-Сахалинск, ул. Комсомольская, 291, позвоните по телефону +7 (914) 084-33-40. Торопитесь! Объявление №30090259248 о продаже трехкомнатной квартиры опубликовано 03 ноября 2025.

    Позвонить Написать
    12 000 000 Р148 400 $ или 128 500
    Агент
    +7 (914) 084-33-40
    Начать чат с агентом
    Похожие предложения
    3-к кв. Сахалинская область, Южно-Сахалинск Комсомольская ул., 291 ... - Фото 1
    3-к кв. Сахалинская область, Южно-Сахалинск Комсомольская ул., 291 ... - Фото 2
    3-комнатная квартира, общая площадь 66м², кухня 12м²

    Продается светлая, тёплая, уютная квартира общей площадью 67 кв.м.В квартире 3 отдельные комнаты, санузел раздельный весь в кафеле, горячая вода круглый год. Окна ПВХ, балкон застеклен, стороны света восток, запад.Вся бытовая, встраиваемая техника (холодильник,...
    • 66 м²
    • 3-ком
    • 2/6 эт.
    • монолит
    13 000 000 Р
    Агент
    +7 (914) Показать номер
    Посмотреть контакты
    1-к кв. Сахалинская область, Южно-Сахалинск Комсомольская ул., 279А/1 ... - Фото 1
    1-к кв. Сахалинская область, Южно-Сахалинск Комсомольская ул., 279А/1 ... - Фото 2
    1-комнатная квартира, общая площадь 40м², кухня 10м²

    Продается однокомнатная квартира с качественным дизайнерским ремонтом. Панорамные окна западной ориентации открывают впечатляющий вид на город и горную гряду, наполняя пространство естественным светом. Мебель и техника остаются по договоренности. Установлен...
    • 40 м²
    • 1-ком
    • 8/14 эт.
    • монолит
    12 281 500 Р
    Агент
    +7 (984) Показать номер
    Посмотреть контакты
    4-к кв. Сахалинская область, Южно-Сахалинск Комсомольская ул., 280 ... - Фото 1
    4-к кв. Сахалинская область, Южно-Сахалинск Комсомольская ул., 280 ... - Фото 2
    4-комнатная квартира, общая площадь 93м², кухня 15м²

    Просторная четырехкомнатная квартира площадью 98.3 кв. м расположена на четвертом этаже пятиэтажного дома в районе с развитой инфраструктурой. Планировка отличается рациональностью: три изолированные комнаты, гостиная, кухня, просторный совмещенный санузел....
    • 93 м²
    • 4-ком
    • 4/5 эт.
    • панельный
    12 000 000 Р
    Агент
    +7 (914) Показать номер
    Посмотреть контакты
    4-к кв. Сахалинская область, Южно-Сахалинск Комсомольская ул., 278А ... - Фото 1
    4-к кв. Сахалинская область, Южно-Сахалинск Комсомольская ул., 278А ... - Фото 2
    4-комнатная квартира, общая площадь 78м², кухня 10м²

    Продается просторная четырехкомнатная квартира в пятиэтажном доме на третьем этаже. Объект находится в отличном состоянии после недавнего косметического ремонта. Практичная планировка с изолированными комнатами обеспечивает комфортное проживание для большой...
    • 78 м²
    • 4-ком
    • 3/5 эт.
    • панельный
    12 800 000 Р
    Агент
    +7 (914) Показать номер
    Посмотреть контакты
    2-к кв. Сахалинская область, Южно-Сахалинск Комсомольская ул., 279А/2 ... - Фото 1
    2-к кв. Сахалинская область, Южно-Сахалинск Комсомольская ул., 279А/2 ... - Фото 2
    2-комнатная квартира, общая площадь 68м², кухня 12м²

    К продаже предлагается 2-ух комнатная квартира, расположенная на 7-ом этаже 9-ти этажного монолитного дома в 13-ом микрорайоне.Стороны света: восток-запад.Комнаты раздельные, кухня с выходом на балкон, санузел совмещен. Состояние квартиры - черновая отделка.Чистый...
    • 68 м²
    • 2-ком
    • 7/9 эт.
    • монолит
    11 500 000 Р
    Агент
    +7 (914) Показать номер
    Посмотреть контакты

    Не нашли подходящего объявления?

    Оставьте заявку, и наши риэлторы подберут квартиру в районе Южно-Сахалинска

    (0)