9 650 000 Р 123 900 $ или 105 600

Информация о квартире

80 м2
Площадь
8 м2
Кухня
4
Комнаты
5
Этаж
5
Этажность

Дополнительная информация

Тип дома
панельный
Развернуть
Агент
+7 (914) 750-84-82
Начать чат с агентом

4-к кв. Сахалинская область, Южно-Сахалинск Большая Елань п/р, ул. ...

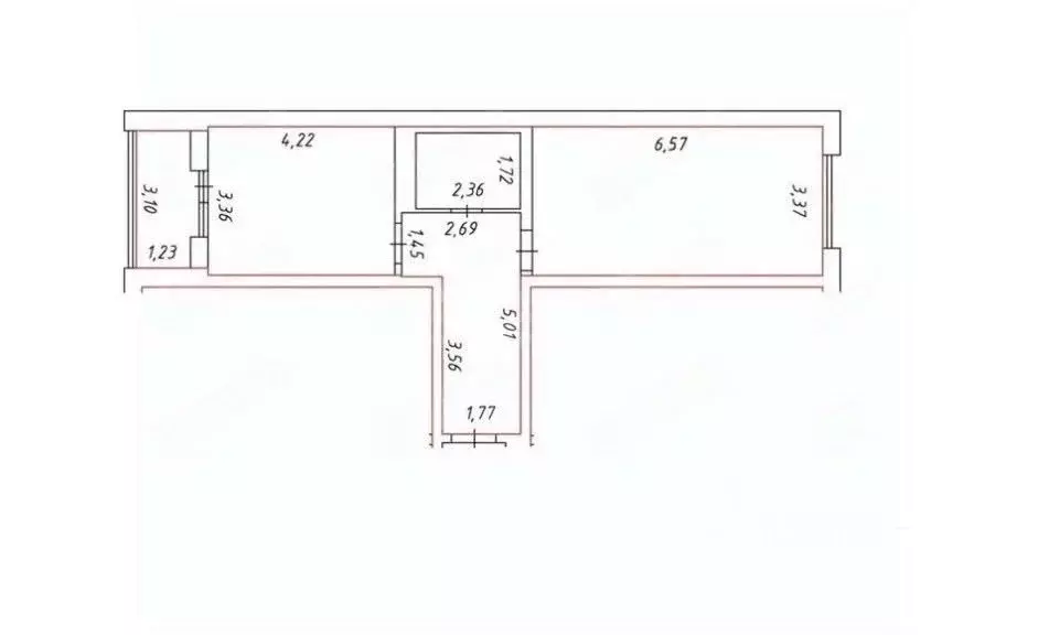
Компания Этажи предлагает к срочной продаже отличную 4-х комнатную квартиру 138 серии 80,8 кв.м. с индивидуальной перепланировкой. Квартира расположена на 5 этаже в середине панельного дома, очень теплая и сухая. Квартира очень комфортная:аздельных спальни,кухня-гостиная с выходом на кухню и большой коридор. Окна ПВХ выходят на восточную и западную стороны. Теплые полы в комнатах и ванной. Горячая вода круглый год. Установлен электротитан и счетчики холодной и горячей воды. Продается квартира с мебелью и техникой. Сан.узел совмещенный. Ванная Джакузи. Натяжные потолки в квартире.Один балкон ПВХ выходит на восточную сторону и большая утепленная лоджия на две спальни выходит на западную сторону. ЖЭК находится прямо в доме в первом подъезде и осознанно выполняет свою работу,все жители довольны работой ЖЭК. Соседи все дружные между собой.В доме очень тепло и сухо и светло.Квартира свободна.Произведен ремонт двора. Во дворе находится детская площадка и платная автостоянка ( в месяц). Остановка и магазины находятся в 2х минутах от дома.Через одну автобусную остановку находятся ТРК Сити Молл, Арена Сити. Компания недвижимости Этажи предлагает Вам услуги: - оформить ипотеку во все банки Сахалинской области; -выезд специалиста на объект; - помощь в сборе необходимых документов для купли-продажи; - юридическая проверка (правовой анализ документов); - сопровождение сделок любой сложности; - работаем с военной ипотекой, социальными программами, с материнским и облас Код пользователя: 123957Номер в базе: 7045478

Читать полностью

    Для того, чтобы купить четырехкомнатную квартиру по адресу: Южно-Сахалинск, Набережная улица, 11, позвоните по телефону +7 (914) 750-84-82. Торопитесь! Объявление №30088645865 о продаже четырехкомнатной квартиры опубликовано 27 ноября 2025.

    Позвонить Написать
    9 650 000 Р123 900 $ или 105 600
    Агент
    +7 (914) 750-84-82
    Начать чат с агентом
    Похожие предложения
    2-к кв. Сахалинская область, Южно-Сахалинск ул. Ленина, 312 (50.0 м) - Фото 1
    2-к кв. Сахалинская область, Южно-Сахалинск ул. Ленина, 312 (50.0 м) - Фото 2
    2-комнатная квартира, общая площадь 50м²

    С качественным ремонтом квартира в центре города, в ремон не надо будет вкладываться еще лет 10. Сделано все идеально Год постройки1983Материал стен -БлокПерекрытия -ЖелезобетонныеОтопление - центральное. Лоджия, средний этаж, середина дома. При продаже...
    • 50 м²
    • 2-ком
    • 3/5 эт.
    • панельный
    9 800 000 Р
    Агент
    +7 (914) Показать номер
    Посмотреть контакты
    2-к кв. Сахалинская область, Южно-Сахалинск просп. Мира, 190А (51.0 м) - Фото 1
    2-к кв. Сахалинская область, Южно-Сахалинск просп. Мира, 190А (51.0 м) - Фото 2
    2-комнатная квартира, общая площадь 51м², кухня 12м²

    К продаже предлагается 2-ух комнатная квартира, расположенная на 9-ом этаже 15-ти этажного монолитного дома 2020 года постройки.Стороны света: восток-запад.В квартире просторная кухня-гостиная, спальня, прихожая, санузел совмещен-в кафеле.Чистый подъезд,...
    • 51 м²
    • 2-ком
    • 9/15 эт.
    • монолит
    9 700 000 Р
    Агент
    +7 (914) Показать номер
    Посмотреть контакты
    2-к кв. Сахалинская область, Южно-Сахалинск Крайняя ул., 37 (66.4 м) - Фото 1
    2-к кв. Сахалинская область, Южно-Сахалинск Крайняя ул., 37 (66.4 м) - Фото 2
    2-комнатная квартира, общая площадь 66м², жилая 40м², кухня 12м²

    Светлая, видовая, не угловая 2 комнатная квартира, в монолитном 9-ти этажном доме на 8-ом этаже, 2012 года постройки в ЖК Берёзовая роща , общая площадь 66,4 кв.м. Окна и балкон ПВХ ориентированы на солнечную западную сторону. Раздельный санузел, большая...
    • 66 м²
    • 2-ком
    • 8/9 эт.
    • монолит
    9 650 000 Р
    Агент
    +7 (914) Показать номер
    Посмотреть контакты
    2-к кв. Сахалинская область, Южно-Сахалинск Крайняя ул., 37 (66.4 м) - Фото 1
    2-к кв. Сахалинская область, Южно-Сахалинск Крайняя ул., 37 (66.4 м) - Фото 2
    2-комнатная квартира, общая площадь 66м², жилая 47м², кухня 12м²

    Продается двухкомнатная квартира новой планировки в монолитном доме 2012 года постройки, без обременений и долгов. Окна выходят на западную сторону, вид из окон представлен на фото.Комнаты раздельные, имеется отдельная гардеробная комната, просторная...
    • 66 м²
    • 2-ком
    • 8/9 эт.
    • монолит
    9 700 000 Р
    Агент
    +7 (984) Показать номер
    Посмотреть контакты
    1-комнатная квартира: Южно-Сахалинск, Больничная улица, 2к3 (38 м) - Фото 1
    1-комнатная квартира: Южно-Сахалинск, Больничная улица, 2к3 (38 м) - Фото 2
    1-комнатная квартира, общая площадь 38м², жилая 24м², кухня 9м²

    Продается светлая, просторная, однокомнатная квартира, расположенная на 8-ом этаже девяти этажного монолитного дома в ЖК Аралия .Сторона света-Восток. В квартире выполнен евро ремонт: натяжные потолки со встроенными софитами и современными люстрами,...
    • 38 м²
    • 1-ком
    • 8/9 эт.
    9 800 000 Р
    Агент
    +7 (984) Показать номер
    Посмотреть контакты

    Не нашли подходящего объявления?

    Оставьте заявку, и наши риэлторы подберут квартиру в районе Южно-Сахалинска

    (0)