Реализация объекта недвижимости приостановлена

Информация о квартире

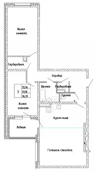
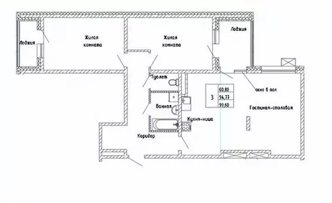
75.0 м2
Площадь
4
Комнаты
2
Этаж
10
Этажность

Дополнительная информация

Тип дома
монолит
Развернуть

4-к кв. Сахалинская область, Южно-Сахалинск (75.4 м)

Продаётся 4-комнатная квартира 75.40 кв. м. в новом жилом комплексе Легенда , расположенном в самом центре города - в границах улицы им. Ф. Э. Дзержинского, просп. Мира и улицы им. Космонавта Поповича.Жилой комплекс бизнес-класса Легенда - это новая гармоничная среда в самом центре деловой и культурной жизни Южно-Сахалинска. Рядом располагаются горнолыжный курорт Горный воздух и биатлонная трасса, Ботанический сад и Зооботанический парк. В 5 минутах езды - железнодорожный вокзал, а в 20 - аэропорт.Проектом предусмотрено строительство 8 жилых корпусов разной этажности, внутри которых обустроен приватный двор-парк. Его концепция включает в себя ландшафтный дизайн и озеленение: на приватной территории у дома высажены деревья, разбиты газоны, обустроены детские и спортивные площадки с учетом нейродинамического подхода и с акцентом на развитии вестибулярной системы, сенсорной моторики, ловкости и интеллекта.Также на территории будет расположен подземно-наземный паркинг, что обеспечит дополнительный уровень безопасности внутридомового пространства.В каждом корпусе обустроены просторные и элегантные гранд-лобби с высокими потолками, дизайнерскими интерьерами и уютными зонами для отдыха. Здесь же оборудованы колясочные и келлеры для хранения сезонного спортивного инвентаря, входы на уровне земли, возможность использования пространства для встреч и деловых переговоров. Все как в премиальном отеле, но с поправкой на то, что это не просто точка для краткосрочной остановки, а место для жизни на долгие годы.Первые этажи отданы под объекты коммерческого назначения, что позволит, не выходя за пределы комплекса, позавтракать в любимой кофейне, закупить необходимые продукты и товары или забрать доставку из популярных маркетплейсов. В шаговой доступности уже работают школы, детские сады, медицинские учреждения, торгово-развлекательные центры, фитнес-клубы и кинотеатры.ЖК Легенда - это место, где комфорт, стиль и функциональность объединены в одном пространстве.

Читать полностью

    Реализация объекта недвижимости приостановлена

    Не нашли подходящего объявления?

    Оставьте заявку, и наши риэлторы подберут квартиру в новостройке в районе Южно-Сахалинска

    (0)