Россия, Сахалинская область, Южно-Сахалинск, улица имени Владимира Жириновского, 4

Реализация объекта недвижимости приостановлена

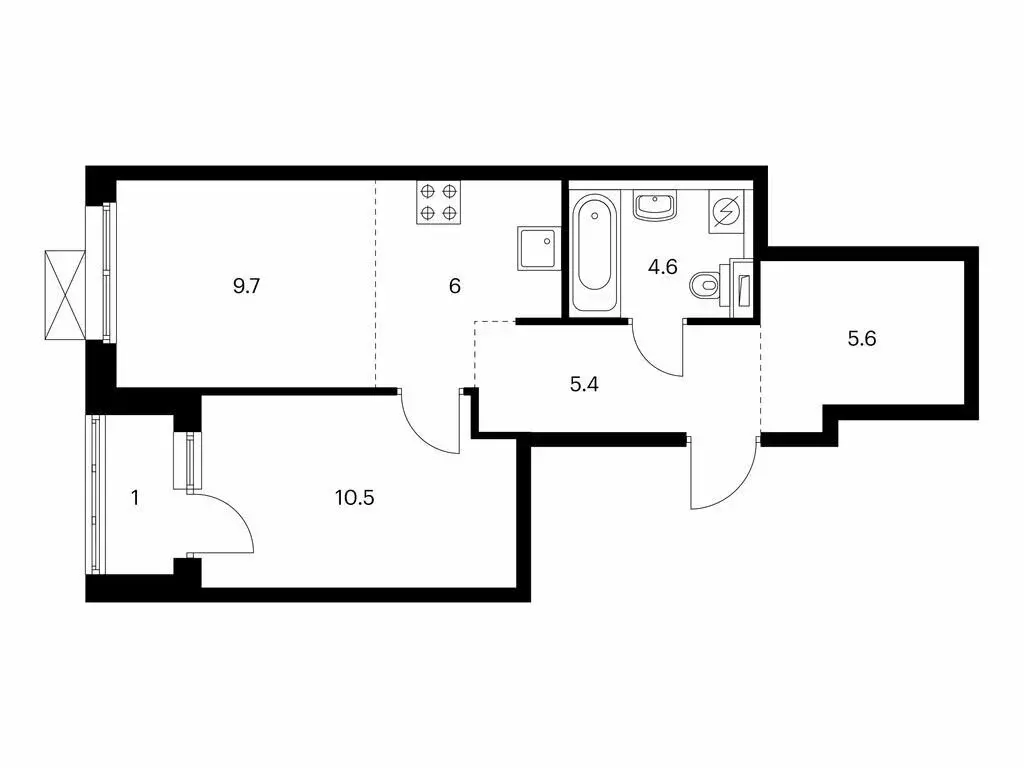
Информация о квартире

42.0 м2
Площадь
10.0 м2
Жилая
15.0 м2
Кухня
1
Комната
16
Этаж
17
Этажность
Развернуть

1-комнатная квартира: Южно-Сахалинск, улица имени Владимира ...

Продаётся 1-комн.квартира площадью 42.80 кв.м на 16 этаже 17 этажного дома (Корпус 17, секция 1) проекта ПИК Уюн парк. Светлый просторный подъезд на уровне земли, функциональная планировка, большие окна, с отделкой. Жилой квартал «Уюн паркасположен в северной части Южно-Сахалинска, в районе Уюн, в 15 минутах на машине от центра города. Квартал окружают сопки и лес, это придаёт ему камерность, атмосферу спокойствия и уединения. В «Уюн парке будет построен 41 жилой корпус. В наших домах просторные и светлые подъезды без ступеней и пандусов. На территории запланированы детский сад и школа, многоуровневые надземные паркинги. На первых этажах — магазины, кафе и полезные сервисы, а на подземных — индивидуальные кладовые. Дома жилого квартала живописным каскадом поднимутся вверх по сопке. Благодаря такой застройке, большим окнам и лоджиям в квартирах всегда будет много естественного света. Территория «Уюн парка спроектирована по принципу «многоуровневого ландшафта : архитекторы учли все особенности рельефа, чтобы создать органичное пространство для жизни. Здесь появятся места для отдыха и прогулок, спортивные и детские площадки. Артикул - 911789

Читать полностью

    Реализация объекта недвижимости приостановлена

    Не нашли подходящего объявления?

    Оставьте заявку, и наши риэлторы подберут квартиру в новостройке в районе Южно-Сахалинска

    (0)