13 000 000 Р 160 600 $ или 138 200

Информация о коттедже

159 м2
Площадь
2
Этажность
15 cоток
Участок

Дополнительная информация

Дом продаётся вместе с участком
есть
Развернуть
Агент
+7 (914) 084-25-21
Начать чат с агентом

Дом в Сахалинская область, Анивский городской округ, с. Рыбацкое ул. ...

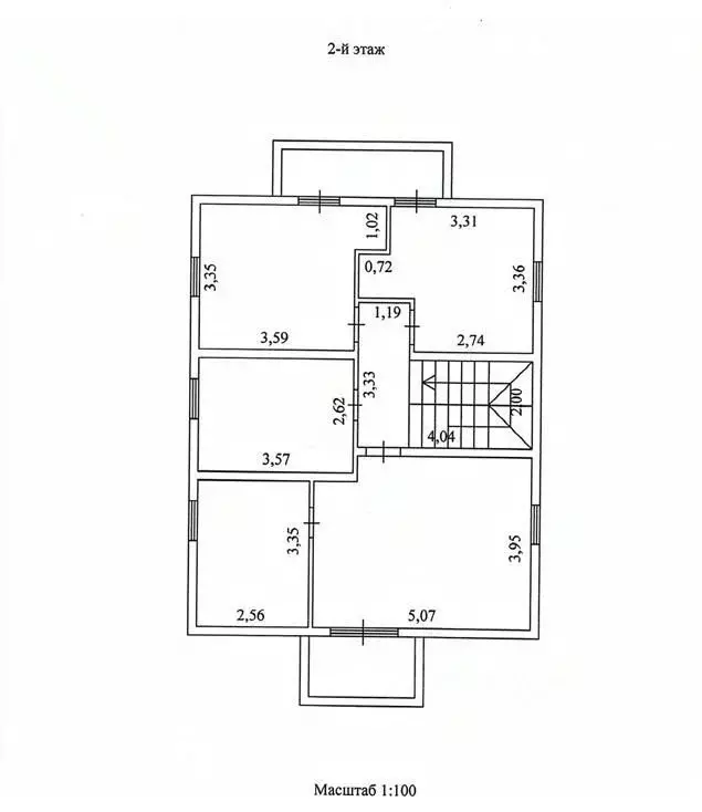
Арт.. Дом от застройщика.Оформление под дальневосточную ипотеку.Продается просторный двухэтажный дом в с. Рыбацкое, на участке 15 соток, ИЖС, 150м до моря (вторая линия). В 1,5 км от г. Анива.На первом этаже просторная (30 м2) кухня гостиная с выходим на террасу, одна жилая комната, санузел, гардеробная и котельная. На втором этаже 4 жилые комнаты и санузел. Из трех комнат имеется выход на балкон.Фундамент - монолитная плита 300 мм. Стены из газоблока, связанные армопоясом. Утепление минеральная вата 150 мм под вентилируемым фасадом. Электричество 380 В, 15 кВт, заведено в дом. Электропроводка разведена по комнатам. Водоснабжение централизованное. Установлен септик с переливом два колодца по два кольца каждый.На полу стяжка, под которой уложено два вида отопления: Электро-водяные теплые полы XL PIPE; 2. Трубы под обычные водяные теплые полы.Есть возможность подключения газа (поселок газифицирован). Участок ровный, сухой, правильной прямоугольной формы, угловой, подъезд с трех сторон. Возможность раздела участка на два.Имеется еще один фундамент под второй большой дом.На все интересующие вопросы отвечу по телефону.

Читать полностью

    Для того, чтобы купить 2-этажный коттедж по адресу: Рыбацкое, ул. Береговая, 20, позвоните по телефону +7 (914) 084-25-21. Торопитесь! Объявление №50016281922 о продаже двухэтажного коттеджа опубликовано 09 октября 2025.

    Позвонить Написать
    13 000 000 Р160 600 $ или 138 200
    Агент
    +7 (914) 084-25-21
    Начать чат с агентом
    Похожие предложения
    Дом в Сахалинская область, Анивский городской округ, с. Зеленодольск ... - Фото 1
    Дом в Сахалинская область, Анивский городской округ, с. Зеленодольск ... - Фото 2
    1 этаж, общая площадь 113м², участок 1969 соток

    Продается просторный дом площадью 113,3 кв. м, построенный в 2010 году из шлакоблоков, расположен в благоустроенном поселке с круглогодичным проживанием. Прочная конструкция стен обеспечивает энергоэффективность и долговечность, а продуманная планировка...
    • 1 эт.
    • 113 м²
    • 1 969 сот.
    12 450 000 Р
    Агент
    +7 (984) Показать номер
    Посмотреть контакты
    Дом в Сахалинская область, Анивский городской округ, с. Мицулевка ул. ... - Фото 1
    Дом в Сахалинская область, Анивский городской округ, с. Мицулевка ул. ... - Фото 2
    1 этаж, общая площадь 93м², участок 5 соток

    Село Мицулёвка - всего 12 вёрст от Сити Молла , рукой подать. До главных дорог легко добраться, а вокруг красота: река Сусуя рядом, воздух чист, птицы поют. Здесь нет гудков, пыли и заводов. Только лесной воздух, запах моря при южном бризе и шелест листвы....
    • 1 эт.
    • 93 м²
    • 5 сот.
    12 300 000 Р
    Агент
    +7 (984) Показать номер
    Посмотреть контакты
    Дом в Сахалинская область, Анивский городской округ, с. Мицулевка ул. ... - Фото 1
    Дом в Сахалинская область, Анивский городской округ, с. Мицулевка ул. ... - Фото 2
    3 этажа, общая площадь 220м², участок 13 соток

    Продается большой трехэтажный дом в с. Мицулевка. Дом возведен на отсыпанном участке. Основанием дома является монолитная железобетонная плита. Недвижимость расположена вдали от дороги, что избавит вас от шума проезжающих машин. Дом полностью возведен...
    • 3 эт.
    • 220 м²
    • 13 сот.
    14 000 000 Р
    Агент
    +7 (984) Показать номер
    Посмотреть контакты
    Дом в Сахалинская область, Анивский городской округ, с. Мицулевка  ... - Фото 1
    Дом в Сахалинская область, Анивский городской округ, с. Мицулевка  ... - Фото 2
    2 этажа, общая площадь 160м², участок 10 соток

    Компания Мой Дом поможет вам приобрести новый, современный, двухэтажный, монолитный дом вашей мечты Основанием дома является монолитная железобетонная плита. ПЛАНИРОВКА ДОМА: -1 Просторная гостиная. -1 Отдельная просторная кухня. -1 Мастер-спальня с...
    • 2 эт.
    • 160 м²
    • 10 сот.
    13 600 000 Р
    Агент
    +7 (984) Показать номер
    Посмотреть контакты
    Дом в Сахалинская область, Анивский городской округ, с. Новотроицкое ... - Фото 1
    Дом в Сахалинская область, Анивский городской округ, с. Новотроицкое ... - Фото 2
    2 этажа, общая площадь 180м², участок 10 соток

    Предлагается к продаже жилой дом площадью 180м2, в экологически чистом районе с. Новотроицкое. Под чистовую отделку. На первом этаже дома расположена просторная гостиная, кухня, спальня , ванная комная, хоз.помещение, бойлерная. Второй этаж мансарда....
    • 2 эт.
    • 180 м²
    • 10 сот.
    12 600 000 Р
    Агент
    +7 (914) Показать номер
    Посмотреть контакты

    Не нашли подходящего объявления?

    Оставьте заявку, и наши риэлторы подберут купить дом в районе Рыбацкого

    (0)