7 500 000 Р 92 760 $ или 79 860

Информация о квартире

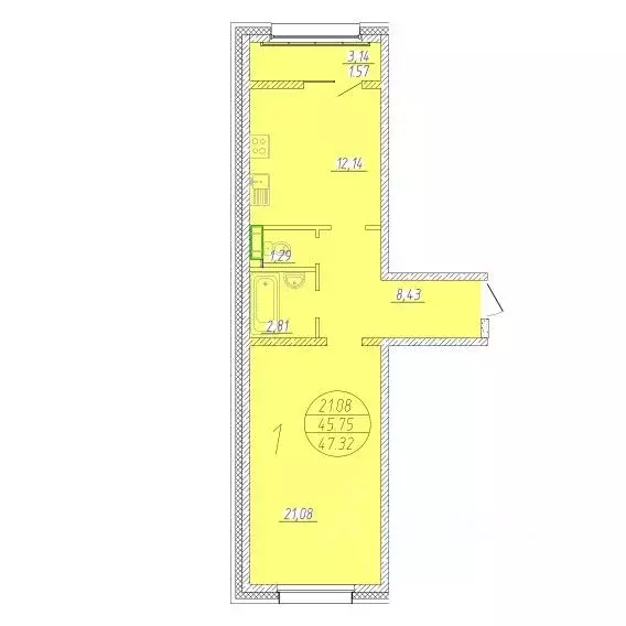
47 м2
Площадь
1
Комната
7
Этаж
8
Этажность

Дополнительная информация

Тип дома
монолит
Развернуть
Агент
+7 (931) 896-10-58
Начать чат с агентом

1-к кв. Сахалинская область, Анивский городской округ, с. Новотроицкое ...

Продаётся 1-комнатная квартира в сданном доме (4 очередь Дом 11), срок сдачи: III-кв. 2024, общей площадью 47.32 кв.м., на 7 этаже. Проект ЖК Зелёная планета будет реализован на земельном участке площадью 18 га, где планируется построить не менее 40,и кв.м жилья. Это 816 квартир, рассчитанных для проживания не менее 1 635 человек. Проект будет реализован в 4 этапа. Чем привлекательны квартиры в ЖК Зелёная планета ? Во-первых, обеспеченностью инженерными сетями. В непосредственной близости расположена трансформаторная подстанция, к которой предусмотрено подключение ЖК Зелёная планета , и проходит линия электропередачи мощностью 35 кВт. Также по границе земельного участка ЖК проходит газопровод низкого давления, за счет которого будет обеспечиваться отопление и горячее водоснабжение. Кроме того, ЖК Зелёная планета обеспечен водоснабжением и водоотведением. Наличие собственной котельной, работающей на природном газе, обеспечит жилой комплекс круглогодичной горячей водой, а также позволит снизить финансовую нагрузку населения в части оплаты коммунальных услуг. Во-вторых, это развитая инфраструктура и благоустройство. В составе ЖК Зелёная планета проектируются детский сад на 100 мест и начальная школа на 50 мест, а также торговый центр с объектами соцкультбыта (ателье, парикмахерская, отделение банка, отделение связи и т.д.). Предусматривается и станция техобслуживания автомобилей с мойкой. Площадь площадок для отдыха населения, а также занятий физкультурой и спортом - более 12 900 кв.м. В жилом комплексе предусмотрена прогулочная алея, а площадь озеленения составит более 29 500 кв.м. Недаром комплекс назвали зелёным. В-третьих, транспортная доступность. При выборе и приобретении жилья для жителей Сахалинской области решающую роль играет местоположение, а именно приближенность к центру Южно-Сахалинска. Удаленность ЖК Зелёная планета от центра (вокзала) составляет 13 км. Это в среднем 20 минут на автомобиле с учетом пробок. Автобус 111НТ курсирует по маршруту Южно-Сахалинск - Новотроицкое - Южно-Сахалинск один раз в час. Проектируемый комплекс обеспечен транспортной инфраструктурой, предусмотрено строительство дополнительных улиц и внутриквартальных проездов в асфальтовом исполнении общей протяженностью 2 км. Предусматривается 725 парковочных машиномест. В настоящее время осуществляется реконструкция автодороги Троицкое - Новотроицкое.

Читать полностью
    Позвонить Написать
    7 500 000 Р92 760 $ или 79 860
    Агент
    +7 (931) 896-10-58
    Начать чат с агентом
    Похожие предложения в Новотроицком
    1-к кв. Сахалинская область, Анивский городской округ, с. Новотроицкое ... - Фото 1
    1-к кв. Сахалинская область, Анивский городской округ, с. Новотроицкое ... - Фото 2
    1-комнатная квартира, общая площадь 47м²

    Продаётся 1-комнатная квартира в сданном доме (4 очередь Дом 11), срок сдачи: III-кв. 2024, общей площадью 47.32 кв.м., на 4 этаже. Проект ЖК Зелёная планета будет реализован на земельном участке площадью 18 га, где планируется построить не менее 40,и...
    • 47 м²
    • 1-ком
    • 4/8 эт.
    • монолит
    7 500 000 Р
    Агент
    +7 (931) Показать номер
    Посмотреть контакты
    1-к кв. Сахалинская область, Анивский городской округ, с. Новотроицкое ... - Фото 1
    1-к кв. Сахалинская область, Анивский городской округ, с. Новотроицкое ... - Фото 2
    1-комнатная квартира, общая площадь 47м²

    Продаётся 1-комнатная квартира в сданном доме (4 очередь Дом 6), срок сдачи: III-кв. 2024, общей площадью 47.32 кв.м., на 7 этаже. Проект ЖК Зелёная планета будет реализован на земельном участке площадью 18 га, где планируется построить не менее 40,и...
    • 47 м²
    • 1-ком
    • 7/8 эт.
    • монолит
    7 500 000 Р
    Агент
    +7 (931) Показать номер
    Посмотреть контакты
    1-к кв. Сахалинская область, Анивский городской округ, с. Новотроицкое ... - Фото 1
    1-к кв. Сахалинская область, Анивский городской округ, с. Новотроицкое ... - Фото 2
    1-комнатная квартира, общая площадь 47м²

    Продаётся 1-комнатная квартира в сданном доме (4 очередь Дом 11), срок сдачи: III-кв. 2024, общей площадью 47.32 кв.м., на 5 этаже. Проект ЖК Зелёная планета будет реализован на земельном участке площадью 18 га, где планируется построить не менее 40,и...
    • 47 м²
    • 1-ком
    • 5/8 эт.
    • монолит
    7 500 000 Р
    Агент
    +7 (931) Показать номер
    Посмотреть контакты
    1-к кв. Сахалинская область, Анивский городской округ, с. Новотроицкое ... - Фото 1
    1-к кв. Сахалинская область, Анивский городской округ, с. Новотроицкое ... - Фото 2
    1-комнатная квартира, общая площадь 47м²

    Продаётся 1-комнатная квартира в сданном доме (4 очередь Дом 11), срок сдачи: III-кв. 2024, общей площадью 47.32 кв.м., на 8 этаже. Проект ЖК Зелёная планета будет реализован на земельном участке площадью 18 га, где планируется построить не менее 40,и...
    • 47 м²
    • 1-ком
    • 8/8 эт.
    • монолит
    7 500 000 Р
    Агент
    +7 (931) Показать номер
    Посмотреть контакты
    1-к кв. Сахалинская область, Анивский городской округ, с. Новотроицкое ... - Фото 1
    1-к кв. Сахалинская область, Анивский городской округ, с. Новотроицкое ... - Фото 2
    1-комнатная квартира, общая площадь 47м²

    Продаётся 1-комнатная квартира в сданном доме (4 очередь Дом 10), срок сдачи: IV-кв. 2023, общей площадью 47.32 кв.м., на 7 этаже. Проект ЖК Зелёная планета будет реализован на земельном участке площадью 18 га, где планируется построить не менее 40,и...
    • 47 м²
    • 1-ком
    • 7/8 эт.
    • монолит
    7 500 000 Р
    Агент
    +7 (931) Показать номер
    Посмотреть контакты

    Не нашли подходящего объявления?

    Оставьте заявку, и наши риэлторы подберут квартиру в новостройке в районе Новотроицкого

    (0)