9 600 000 Р 123 200 $ или 105 100

Информация о квартире

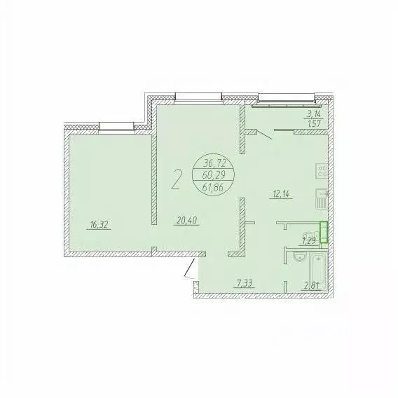
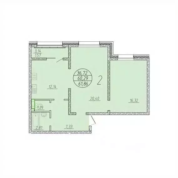
61 м2
Площадь
2
Комнаты
2
Этаж
8
Этажность

Дополнительная информация

Тип дома
монолит
Развернуть
Агент
+7 (938) 819-06-89
Начать чат с агентом

2-к кв. Сахалинская область, Анивский городской округ, с. Новотроицкое ...

Продаётся 2-комнатная квартира в сданном доме (4 очередь Дом 11), срок сдачи: III-кв. 2024, общей площадью 61.86 кв.м., на 2 этаже. Проект ЖК Зелёная планета будет реализован на земельном участке площадью 18 га, где планируется построить не менее 40,и кв.м жилья. Это 816 квартир, рассчитанных для проживания не менее 1 635 человек. Проект будет реализован в 4 этапа. Чем привлекательны квартиры в ЖК Зелёная планета ? Во-первых, обеспеченностью инженерными сетями. В непосредственной близости расположена трансформаторная подстанция, к которой предусмотрено подключение ЖК Зелёная планета , и проходит линия электропередачи мощностью 35 кВт. Также по границе земельного участка ЖК проходит газопровод низкого давления, за счет которого будет обеспечиваться отопление и горячее водоснабжение. Кроме того, ЖК Зелёная планета обеспечен водоснабжением и водоотведением. Наличие собственной котельной, работающей на природном газе, обеспечит жилой комплекс круглогодичной горячей водой, а также позволит снизить финансовую нагрузку населения в части оплаты коммунальных услуг. Во-вторых, это развитая инфраструктура и благоустройство. В составе ЖК Зелёная планета проектируются детский сад на 100 мест и начальная школа на 50 мест, а также торговый центр с объектами соцкультбыта (ателье, парикмахерская, отделение банка, отделение связи и т.д.). Предусматривается и станция техобслуживания автомобилей с мойкой. Площадь площадок для отдыха населения, а также занятий физкультурой и спортом - более 12 900 кв.м. В жилом комплексе предусмотрена прогулочная алея, а площадь озеленения составит более 29 500 кв.м. Недаром комплекс назвали зелёным. В-третьих, транспортная доступность. При выборе и приобретении жилья для жителей Сахалинской области решающую роль играет местоположение, а именно приближенность к центру Южно-Сахалинска. Удаленность ЖК Зелёная планета от центра (вокзала) составляет 13 км. Это в среднем 20 минут на автомобиле с учетом пробок. Автобус 111НТ курсирует по маршруту Южно-Сахалинск - Новотроицкое - Южно-Сахалинск один раз в час. Проектируемый комплекс обеспечен транспортной инфраструктурой, предусмотрено строительство дополнительных улиц и внутриквартальных проездов в асфальтовом исполнении общей протяженностью 2 км. Предусматривается 725 парковочных машиномест. В настоящее время осуществляется реконструкция автодороги Троицкое - Новотроицкое.

Читать полностью
    Позвонить Написать
    9 600 000 Р123 200 $ или 105 100
    Агент
    +7 (938) 819-06-89
    Начать чат с агентом
    Похожие предложения в Новотроицком
    2-к кв. Сахалинская область, Анивский городской округ, с. Новотроицкое ... - Фото 1
    2-к кв. Сахалинская область, Анивский городской округ, с. Новотроицкое ... - Фото 2
    2-комнатная квартира, общая площадь 61м²

    Продаётся 2-комнатная квартира в сданном доме (4 очередь Дом 11), срок сдачи: III-кв. 2024, общей площадью 61.86 кв.м., на 5 этаже. Проект ЖК Зелёная планета будет реализован на земельном участке площадью 18 га, где планируется построить не менее 40,и...
    • 61 м²
    • 2-ком
    • 5/8 эт.
    • монолит
    9 600 000 Р
    Агент
    +7 (938) Показать номер
    Посмотреть контакты
    2-к кв. Сахалинская область, Анивский городской округ, с. Новотроицкое ... - Фото 1
    2-к кв. Сахалинская область, Анивский городской округ, с. Новотроицкое ... - Фото 2
    2-комнатная квартира, общая площадь 61м²

    Продаётся 2-комнатная квартира в сданном доме (4 очередь Дом 11), срок сдачи: III-кв. 2024, общей площадью 61.86 кв.м., на 6 этаже. Проект ЖК Зелёная планета будет реализован на земельном участке площадью 18 га, где планируется построить не менее 40,и...
    • 61 м²
    • 2-ком
    • 6/8 эт.
    • монолит
    9 600 000 Р
    Агент
    +7 (938) Показать номер
    Посмотреть контакты
    2-к кв. Сахалинская область, Анивский городской округ, с. Новотроицкое ... - Фото 1
    2-к кв. Сахалинская область, Анивский городской округ, с. Новотроицкое ... - Фото 2
    2-комнатная квартира, общая площадь 61м²

    Продаётся 2-комнатная квартира в сданном доме (4 очередь Дом 11), срок сдачи: III-кв. 2024, общей площадью 61.86 кв.м., на 7 этаже. Проект ЖК Зелёная планета будет реализован на земельном участке площадью 18 га, где планируется построить не менее 40,и...
    • 61 м²
    • 2-ком
    • 7/8 эт.
    • монолит
    9 600 000 Р
    Агент
    +7 (938) Показать номер
    Посмотреть контакты
    2-к кв. Сахалинская область, Анивский городской округ, с. Новотроицкое ... - Фото 1
    2-к кв. Сахалинская область, Анивский городской округ, с. Новотроицкое ... - Фото 2
    2-комнатная квартира, общая площадь 61м²

    Продаётся 2-комнатная квартира в сданном доме (4 очередь Дом 11), срок сдачи: III-кв. 2024, общей площадью 61.86 кв.м., на 7 этаже. Проект ЖК Зелёная планета будет реализован на земельном участке площадью 18 га, где планируется построить не менее 40,и...
    • 61 м²
    • 2-ком
    • 7/8 эт.
    • монолит
    9 600 000 Р
    Агент
    +7 (938) Показать номер
    Посмотреть контакты
    2-к кв. Сахалинская область, Анивский городской округ, с. Новотроицкое ... - Фото 1
    2-к кв. Сахалинская область, Анивский городской округ, с. Новотроицкое ... - Фото 2
    2-комнатная квартира, общая площадь 61м²

    Продаётся 2-комнатная квартира в сданном доме (4 очередь Дом 11), срок сдачи: III-кв. 2024, общей площадью 61.86 кв.м., на 8 этаже. Проект ЖК Зелёная планета будет реализован на земельном участке площадью 18 га, где планируется построить не менее 40,и...
    • 61 м²
    • 2-ком
    • 8/8 эт.
    • монолит
    9 600 000 Р
    Агент
    +7 (938) Показать номер
    Посмотреть контакты

    Не нашли подходящего объявления?

    Оставьте заявку, и наши риэлторы подберут квартиру в новостройке в районе Новотроицкого

    (0)